immobilimpresa

Capannone in Affitto Buccinasco

3.000

Mq. 413

Clicca sull'immagine per ingrandirla

Buccinasco

(MI) Via resistenza
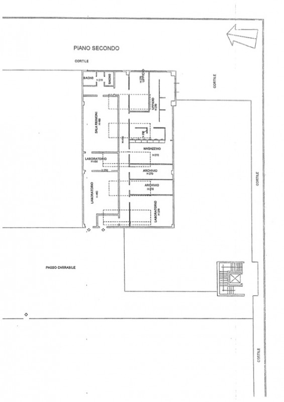
Immobilimpresa 9743132Riferimento Agenzia FL1392C – Affittasi a Buccinasco in Zona Commerciale servita da linea autobus e vicina alla tangenziale ovest, capannone/laboratorio e uffici posto al secondo piano con accesso tramite rampa oltre ad un accesso... Vedi di più
Prezzo: € 3.000   Fai una controproposta

Hai un immobile simile da vendere? Vendine uno uguale

La responsabilità del contenuto dell'annuncio fa capo all'inserzionista, non forniamo garanzie per le informazioni pubblicate da terzi

Contatta per l'annuncio

Ricevi più proposte: le caratteristiche dell'immobile che stai cercando ed i tuoi recapiti, verranno inviati alle agenzie immobiliari della zona di tuo interesse

Registrandoti a questo servizio dichiari di aver letto e di accettare l'Informativa alla Privacy

* I campi con l'asterisco sono obbligatori

CONSULENZA Prestiti
Personali e MUTUO