immobilimpresa

Terreno urbano in Vendita Sarzana

120.000 calcola mutuo

Mq. 240

10 locali

Clicca sull'immagine per ingrandirla

Sarzana

(SP)
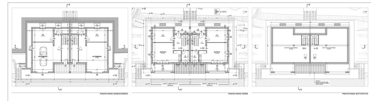
Immobilimpresa 9282949Riferimento Agenzia V007196 – In ottimo contesto, zona urbanizzata, si vende terreno di circa 1150 mq con PROGETTO APPROVATO per edificare villa bifamiliare ,oppure monofamiliare di ampia metratura. Progetto architettonico gi&... Vedi di più
Prezzo: € 120.000   Fai una controproposta

Hai un immobile simile da vendere? Vendine uno uguale

La responsabilità del contenuto dell'annuncio fa capo all'inserzionista, non forniamo garanzie per le informazioni pubblicate da terzi

Contatta per l'annuncio

Ricevi più proposte: le caratteristiche dell'immobile che stai cercando ed i tuoi recapiti, verranno inviati alle agenzie immobiliari della zona di tuo interesse

Registrandoti a questo servizio dichiari di aver letto e di accettare l'Informativa alla Privacy

* I campi con l'asterisco sono obbligatori

CONSULENZA Prestiti
Personali e MUTUO