immobilimpresa

Ufficio in Affitto Milano

8.039

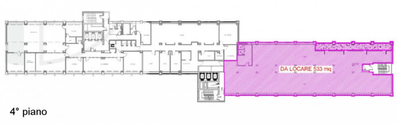
Mq. 533

4 locali

Clicca sull'immagine per ingrandirla

Greco

- Milano (MI) VIALE MONZA
Immobilimpresa 9050108Riferimento Agenzia ULJO141 – Affitta a Milano, Precotto, Ufficio Direzionale, mq. 533 ca., 4 piano, con ascensori, portineria. Canone annuo Euro. 96473,00 ( pari a ca. 8.039,00 euro al mese) spese annue 18.700,00 ( pari a ca. 35,... Vedi di più
Prezzo: € 8.039   Fai una controproposta

Hai un immobile simile da vendere? Vendine uno uguale

La responsabilità del contenuto dell'annuncio fa capo all'inserzionista, non forniamo garanzie per le informazioni pubblicate da terzi

Contatta per l'annuncio

Ricevi più proposte: le caratteristiche dell'immobile che stai cercando ed i tuoi recapiti, verranno inviati alle agenzie immobiliari della zona di tuo interesse

Registrandoti a questo servizio dichiari di aver letto e di accettare l'Informativa alla Privacy

* I campi con l'asterisco sono obbligatori

CONSULENZA Prestiti
Personali e MUTUO