immobilimpresa

Ufficio in Affitto Cernusco sul Naviglio

6.233

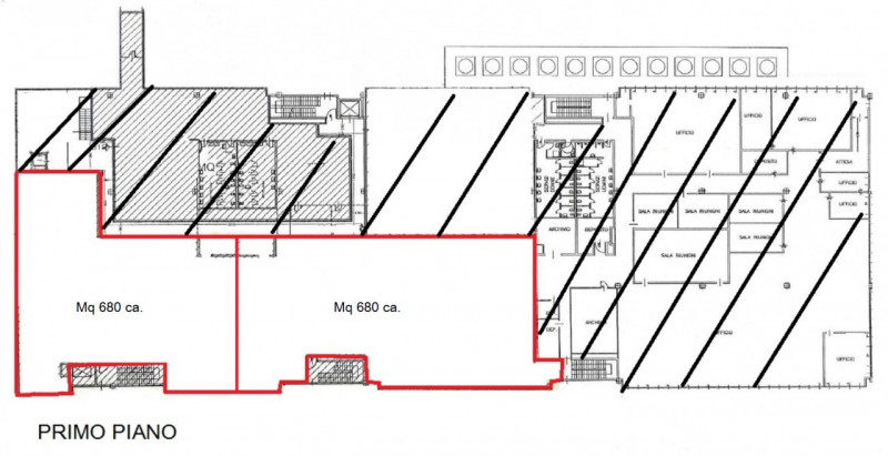
Mq. 680

4 locali

Clicca sull'immagine per ingrandirla

Cernusco sul Naviglio

(MI) VIA MAZZINI G.
Immobilimpresa 8033043Riferimento Agenzia ULLI006 – Affitta a Cernusco sul Naviglio, Statale undici, Ufficio, mq. 680 ca., 1 piano. Canone annuo Euro. 74.800,00 ( pari a ca. 6.233,00 euro al mese) spese annue a parte. Ufficio situato in zona di forte p... Vedi di più
Prezzo: € 6.233   Fai una controproposta

Hai un immobile simile da vendere? Vendine uno uguale

La responsabilità del contenuto dell'annuncio fa capo all'inserzionista, non forniamo garanzie per le informazioni pubblicate da terzi

Contatta per l'annuncio

Ricevi più proposte: le caratteristiche dell'immobile che stai cercando ed i tuoi recapiti, verranno inviati alle agenzie immobiliari della zona di tuo interesse

Registrandoti a questo servizio dichiari di aver letto e di accettare l'Informativa alla Privacy

* I campi con l'asterisco sono obbligatori

CONSULENZA Prestiti
Personali e MUTUO