immobilimpresa

Capannone in Vendita Sanguinetto

50.625 calcola mutuo

Mq. 15381

Clicca sull'immagine per ingrandirla

Sanguinetto

- Sanguinetto (VR) Via Dossi
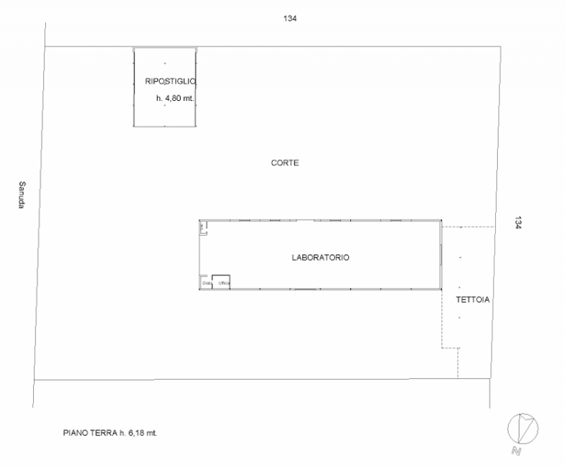
Immobilimpresa 10972529Riferimento Agenzia GB13042026 – SANGUINETTO (VR) VIA DOSSI - Piena proprietà di capannone con tettoie e terreno con potenzialità edificatoria. L’immobile in oggetto ha pianta rettangolare di 678 mq, avente destin... Vedi di più
Prezzo: € 50.625   Fai una controproposta

Hai un immobile simile da vendere? Vendine uno uguale

La responsabilità del contenuto dell'annuncio fa capo all'inserzionista, non forniamo garanzie per le informazioni pubblicate da terzi

Contatta per l'annuncio

Ricevi più proposte: le caratteristiche dell'immobile che stai cercando ed i tuoi recapiti, verranno inviati alle agenzie immobiliari della zona di tuo interesse

Registrandoti a questo servizio dichiari di aver letto e di accettare l'Informativa alla Privacy

* I campi con l'asterisco sono obbligatori

CONSULENZA Prestiti
Personali e MUTUO