immobilimpresa

Locale commerciale/Negozio in Vendita Pralboino

175.000 calcola mutuo

Mq. 136

2 locali

Clicca sull'immagine per ingrandirla

Pralboino

(BS) Via Fornaci, 6, 25020 Pralboino BS, Italia
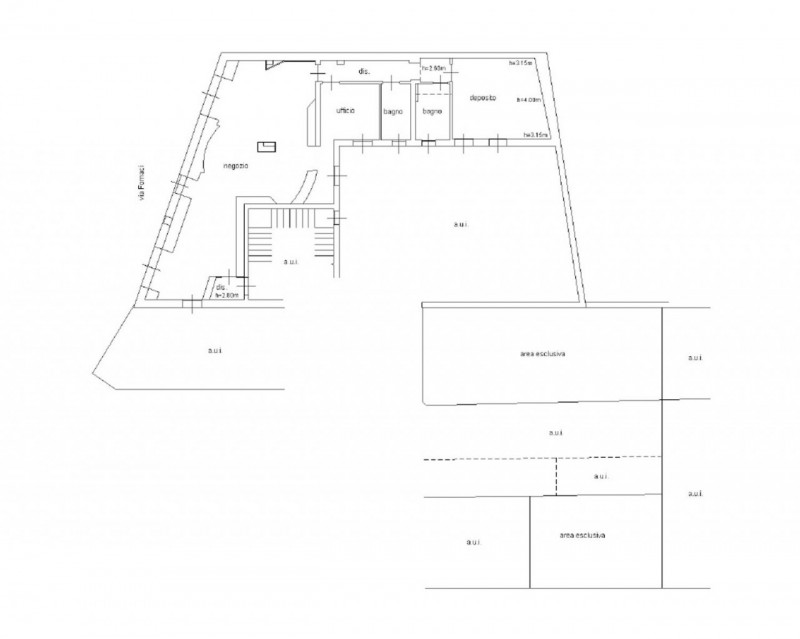
Immobilimpresa 10966203Riferimento Agenzia 2638635 – Proponiamo in vendita un negozio con due ampie vetrine situato a Pralboino, in via Fornaci 6/8, in posizione facilmente accessibile e con buona visibilità dalla strada. L’unità, p... Vedi di più
Prezzo: € 175.000   Fai una controproposta

Hai un immobile simile da vendere? Vendine uno uguale

La responsabilità del contenuto dell'annuncio fa capo all'inserzionista, non forniamo garanzie per le informazioni pubblicate da terzi

Contatta per l'annuncio

Ricevi più proposte: le caratteristiche dell'immobile che stai cercando ed i tuoi recapiti, verranno inviati alle agenzie immobiliari della zona di tuo interesse

Registrandoti a questo servizio dichiari di aver letto e di accettare l'Informativa alla Privacy

* I campi con l'asterisco sono obbligatori

CONSULENZA Prestiti
Personali e MUTUO