immobilimpresa

Capannone in Affitto Molfetta

18.334

Mq. 2838

9 locali

Clicca sull'immagine per ingrandirla

Molfetta

(BA) Via A. Olivetti, 29, 70056 Molfetta BA, Italia
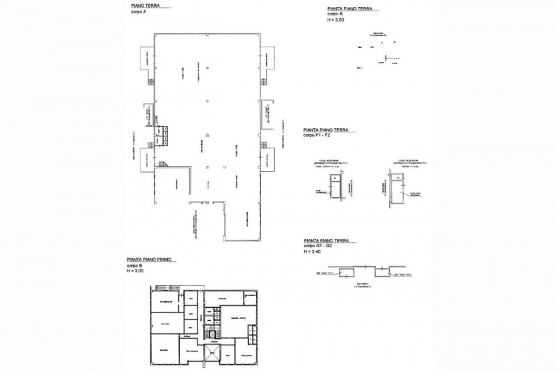
Immobilimpresa 10964040Riferimento Agenzia 2638612 – Proponiamo in locazione importante complesso immobiliare cielo-terra con area esterna esclusiva, ubicato in posizione strategica nella zona produttivo-commerciale di Molfetta. L’immobile &egrav... Vedi di più
Prezzo: € 18.334   Fai una controproposta

Hai un immobile simile da vendere? Vendine uno uguale

La responsabilità del contenuto dell'annuncio fa capo all'inserzionista, non forniamo garanzie per le informazioni pubblicate da terzi

Contatta per l'annuncio

Ricevi più proposte: le caratteristiche dell'immobile che stai cercando ed i tuoi recapiti, verranno inviati alle agenzie immobiliari della zona di tuo interesse

Registrandoti a questo servizio dichiari di aver letto e di accettare l'Informativa alla Privacy

* I campi con l'asterisco sono obbligatori

CONSULENZA Prestiti
Personali e MUTUO