immobilimpresa

Capannone in Vendita Nogarole Rocca

175.309 calcola mutuo

Mq. 1409

Clicca sull'immagine per ingrandirla

Nogarole Rocca

- Nogarole Rocca (VR) Via Roma 16
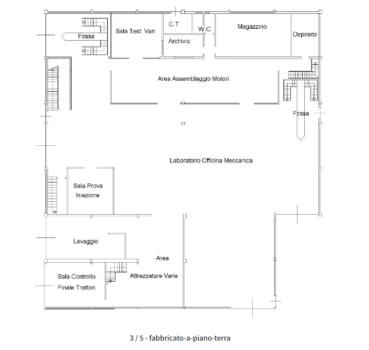
Immobilimpresa 10956308Riferimento Agenzia GB17042026 – NOGAROLE ROCCA (VR) VIA ROMA 16 - Piena proprietà di Capannoni con area di pertinenza. Immobile composto da due fabbricati, adibiti ad officina meccanica con annessi uffici, magazzini e deposit... Vedi di più
Prezzo: € 175.309   Fai una controproposta

Hai un immobile simile da vendere? Vendine uno uguale

La responsabilità del contenuto dell'annuncio fa capo all'inserzionista, non forniamo garanzie per le informazioni pubblicate da terzi

Contatta per l'annuncio

Ricevi più proposte: le caratteristiche dell'immobile che stai cercando ed i tuoi recapiti, verranno inviati alle agenzie immobiliari della zona di tuo interesse

Registrandoti a questo servizio dichiari di aver letto e di accettare l'Informativa alla Privacy

* I campi con l'asterisco sono obbligatori

CONSULENZA Prestiti
Personali e MUTUO