immobilimpresa

Locale commerciale/Negozio in Affitto Firenze

1.400

Mq. 78

2 locali

Clicca sull'immagine per ingrandirla

Campo di Marte / Le Cure / Coverciano

- Firenze (FI) VIA COMPARETTI
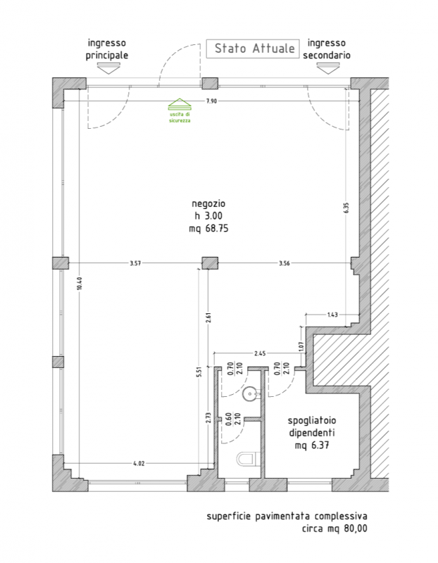
Immobilimpresa 10932891Riferimento Agenzia C12A-02 – FIRENZE COVERCIANO - VIA DEL GUARLONE PRESSI In zona commerciale, nei pressi del supermercato Esselunga, proponiamo in affitto locale commerciale di circa 80 mq, composto da ampio vano open space, una... Vedi di più
Prezzo: € 1.400   Fai una controproposta

Hai un immobile simile da vendere? Vendine uno uguale

La responsabilità del contenuto dell'annuncio fa capo all'inserzionista, non forniamo garanzie per le informazioni pubblicate da terzi

Contatta per l'annuncio

Ricevi più proposte: le caratteristiche dell'immobile che stai cercando ed i tuoi recapiti, verranno inviati alle agenzie immobiliari della zona di tuo interesse

Registrandoti a questo servizio dichiari di aver letto e di accettare l'Informativa alla Privacy

* I campi con l'asterisco sono obbligatori

CONSULENZA Prestiti
Personali e MUTUO