immobilimpresa

Locale commerciale/Negozio in Vendita Ponte dell'Olio

25.506 calcola mutuo

Mq. 102

3 locali

Clicca sull'immagine per ingrandirla

Ponte dell'Olio

(PC) via ponte maleo, 11
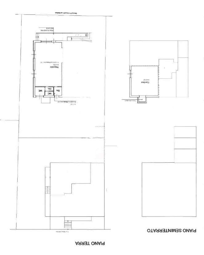
Immobilimpresa 10920505Riferimento Agenzia A48K23L2 18/02/ – ASTA GIUDIZIARIA Piena proprietà di negozio attualmente adibito a bar posto al piano terra con cantina al piano interrato in Comune di Ponte dell'Olio (Pc), via Ponte Maleo n. 11. Lo studio... Vedi di più
Prezzo: € 25.506   Fai una controproposta

Hai un immobile simile da vendere? Vendine uno uguale

La responsabilità del contenuto dell'annuncio fa capo all'inserzionista, non forniamo garanzie per le informazioni pubblicate da terzi

Contatta per l'annuncio

Ricevi più proposte: le caratteristiche dell'immobile che stai cercando ed i tuoi recapiti, verranno inviati alle agenzie immobiliari della zona di tuo interesse

Registrandoti a questo servizio dichiari di aver letto e di accettare l'Informativa alla Privacy

* I campi con l'asterisco sono obbligatori

CONSULENZA Prestiti
Personali e MUTUO