immobilimpresa

Capannone in Affitto Venezia

4.000

Mq. 400

Clicca sull'immagine per ingrandirla

Marghera

- Venezia (VE) Via Luigi Coletti
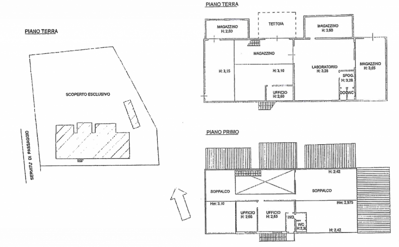
Immobilimpresa 10754537Riferimento Agenzia CP-134 – NOSTRO RIF. CP-134 Proponiamo in affitto a Marghera, comodo all'autostrada, CAPANNONE singolo categoria D/7 di mq 450 circa. L'immobile è sviluppato su due livelli come da planimetria ed &egrav... Vedi di più
Prezzo: € 4.000   Fai una controproposta

Hai un immobile simile da vendere? Vendine uno uguale

La responsabilità del contenuto dell'annuncio fa capo all'inserzionista, non forniamo garanzie per le informazioni pubblicate da terzi

Contatta per l'annuncio

Ricevi più proposte: le caratteristiche dell'immobile che stai cercando ed i tuoi recapiti, verranno inviati alle agenzie immobiliari della zona di tuo interesse

Registrandoti a questo servizio dichiari di aver letto e di accettare l'Informativa alla Privacy

* I campi con l'asterisco sono obbligatori

CONSULENZA Prestiti
Personali e MUTUO