immobilimpresa

Capannone in Vendita Montecchio Precalcino

200.000 calcola mutuo

Mq. 300

1 locali

Clicca sull'immagine per ingrandirla

Montecchio Precalcino

(VI)
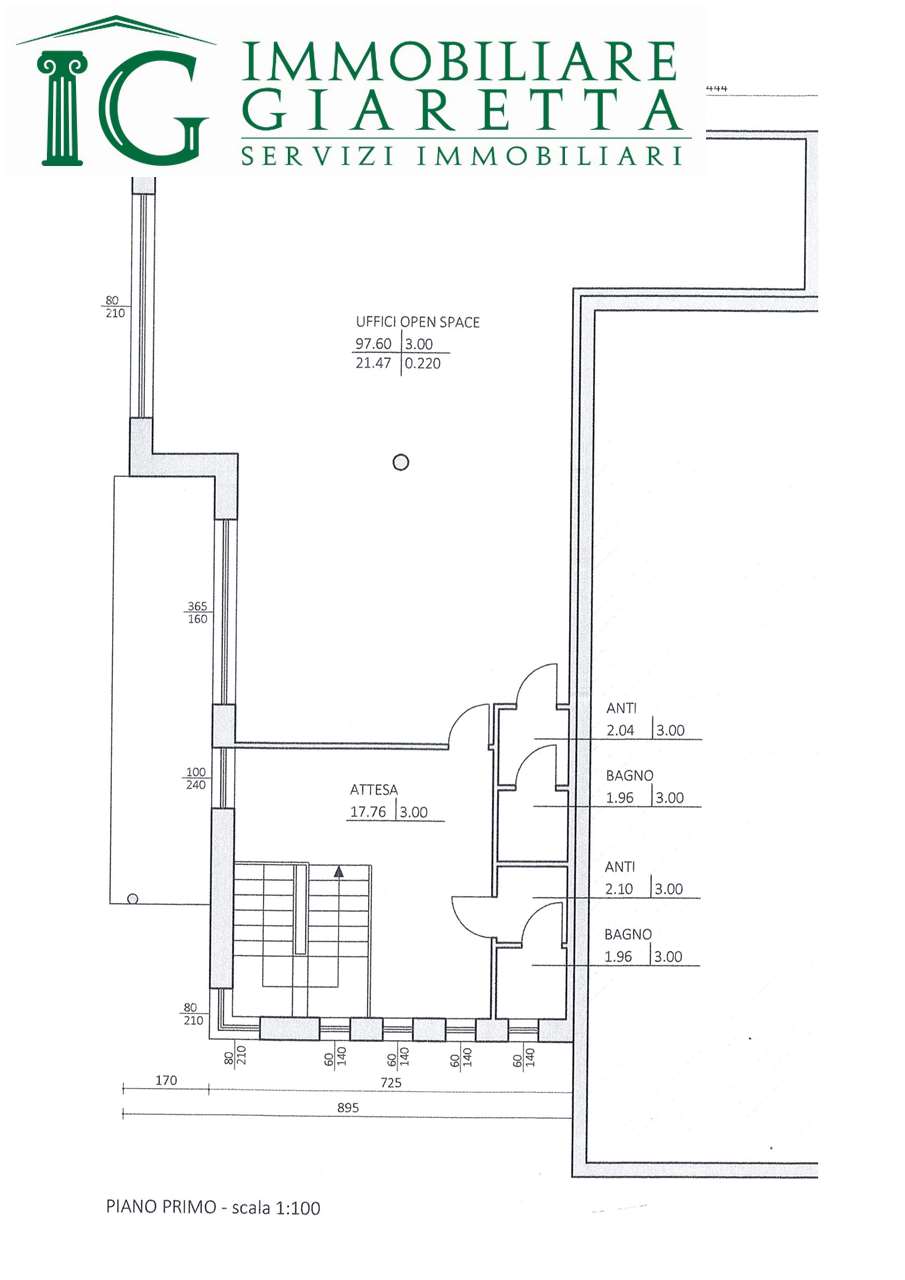
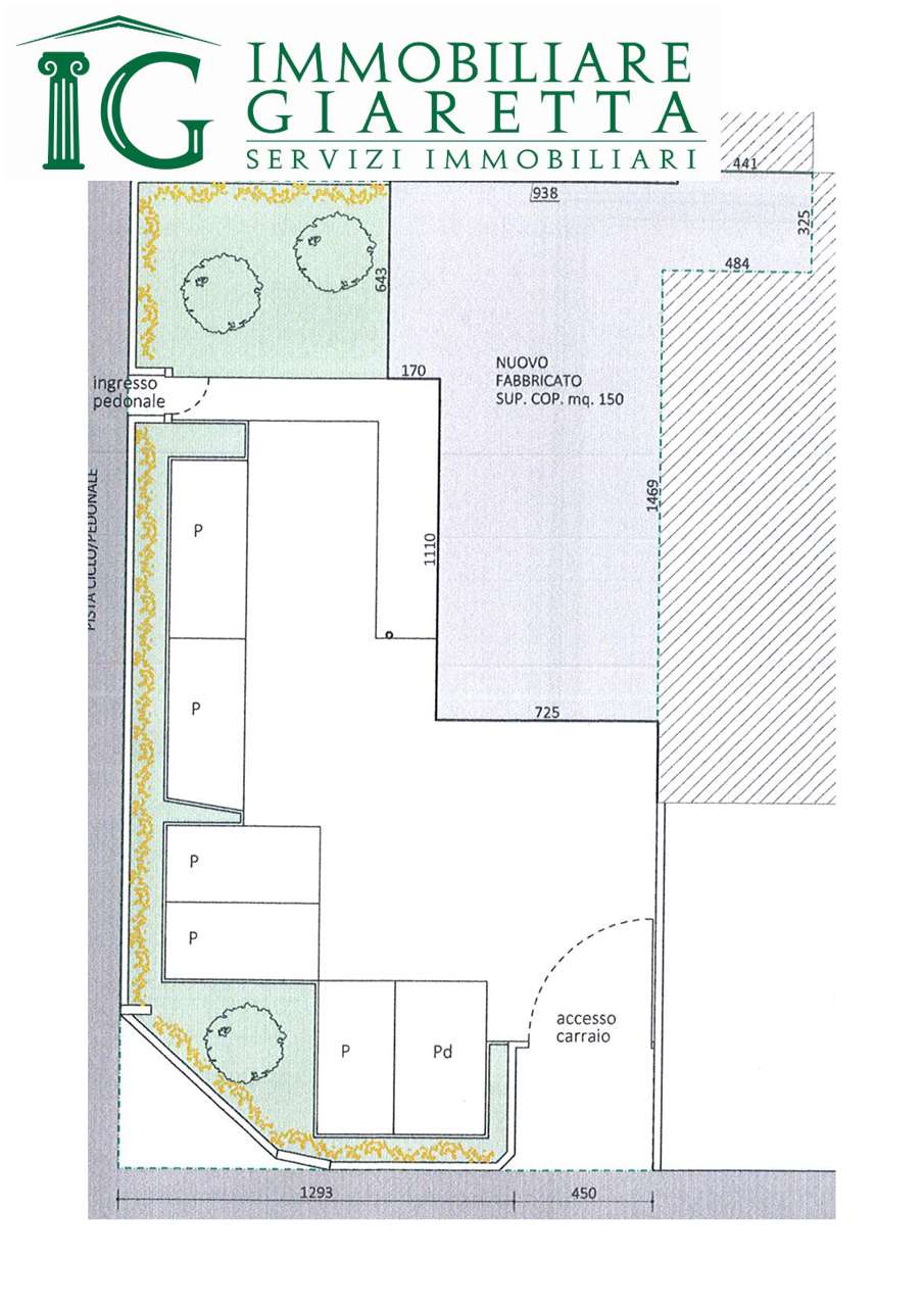
Immobilimpresa 10665057Riferimento Agenzia V000070 – Di prossima realizzazione, capannone/laboratorio affiancato con ingressi autonomi. Ha una pianta di 150 mq con possibilità di essere realizzato in due piani con, ad esempio, magazzino/area ... Vedi di più
Prezzo: € 200.000   Fai una controproposta

Hai un immobile simile da vendere? Vendine uno uguale

La responsabilità del contenuto dell'annuncio fa capo all'inserzionista, non forniamo garanzie per le informazioni pubblicate da terzi

Contatta per l'annuncio

Ricevi più proposte: le caratteristiche dell'immobile che stai cercando ed i tuoi recapiti, verranno inviati alle agenzie immobiliari della zona di tuo interesse

Registrandoti a questo servizio dichiari di aver letto e di accettare l'Informativa alla Privacy

* I campi con l'asterisco sono obbligatori

CONSULENZA Prestiti
Personali e MUTUO