immobilimpresa

Locale commerciale/Negozio in Vendita Gubbio

363.506 calcola mutuo

Mq. 1285

8 locali

Clicca sull'immagine per ingrandirla

Gubbio

(PG) Via Don Giuseppe Diana, N. snc
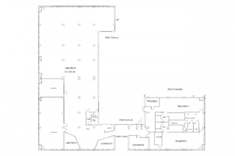
Immobilimpresa 10661060Riferimento Agenzia 22974 – Quest’immobile viene venduto tramite asta online. Locale commerciale adibito a palestra con cinque garage sito a Gubbio (PG), in via Don Giuseppe Diana. I beni sono ricompresi all’interno ... Vedi di più
Prezzo: € 363.506   Fai una controproposta

Hai un immobile simile da vendere? Vendine uno uguale

La responsabilità del contenuto dell'annuncio fa capo all'inserzionista, non forniamo garanzie per le informazioni pubblicate da terzi

Contatta per l'annuncio

Ricevi più proposte: le caratteristiche dell'immobile che stai cercando ed i tuoi recapiti, verranno inviati alle agenzie immobiliari della zona di tuo interesse

Registrandoti a questo servizio dichiari di aver letto e di accettare l'Informativa alla Privacy

* I campi con l'asterisco sono obbligatori

CONSULENZA Prestiti
Personali e MUTUO