immobilimpresa

Magazzino in Vendita Roma

210.000 calcola mutuo

Mq. 670

2 locali

Clicca sull'immagine per ingrandirla

Roma

(RM) Via Annia Regilla, N. 123
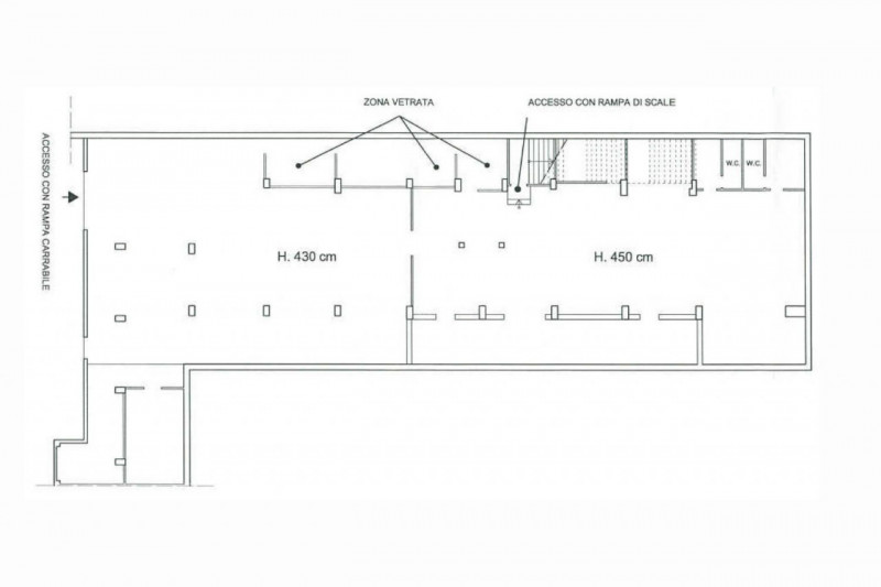
Immobilimpresa 10660986Riferimento Agenzia 23518 – Quest’immobile viene venduto tramite asta online. Magazzino, ubicato nel cuore di Roma, all’angolo di Via Annia Regilla e Via di San Tarcisio. Questa struttura, che un tempo ospitava un&rs... Vedi di più
Prezzo: € 210.000   Fai una controproposta

Hai un immobile simile da vendere? Vendine uno uguale

La responsabilità del contenuto dell'annuncio fa capo all'inserzionista, non forniamo garanzie per le informazioni pubblicate da terzi

Contatta per l'annuncio

Ricevi più proposte: le caratteristiche dell'immobile che stai cercando ed i tuoi recapiti, verranno inviati alle agenzie immobiliari della zona di tuo interesse

Registrandoti a questo servizio dichiari di aver letto e di accettare l'Informativa alla Privacy

* I campi con l'asterisco sono obbligatori

CONSULENZA Prestiti
Personali e MUTUO