immobilimpresa

Capannone in Vendita Pianopoli

158.989 calcola mutuo

Mq. 586

13 locali

Clicca sull'immagine per ingrandirla

Pianopoli

(CZ) Via Berlinguer, N. snc
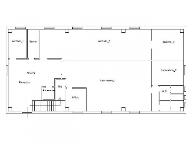
Immobilimpresa 10660762Riferimento Agenzia 25699 – Quest’immobile viene venduto tramite asta online. Capannone di due piani con corte, deposito e terreno sito a Pianopoli (CZ), località Vianova, in via Berlinguer. Trattasi di fabbricato a... Vedi di più
Prezzo: € 158.989   Fai una controproposta

Hai un immobile simile da vendere? Vendine uno uguale

La responsabilità del contenuto dell'annuncio fa capo all'inserzionista, non forniamo garanzie per le informazioni pubblicate da terzi

Contatta per l'annuncio

Ricevi più proposte: le caratteristiche dell'immobile che stai cercando ed i tuoi recapiti, verranno inviati alle agenzie immobiliari della zona di tuo interesse

Registrandoti a questo servizio dichiari di aver letto e di accettare l'Informativa alla Privacy

* I campi con l'asterisco sono obbligatori

CONSULENZA Prestiti
Personali e MUTUO