immobilimpresa

Locale commerciale/Negozio in Affitto Milano

5.000

Mq. 195

4 locali

Clicca sull'immagine per ingrandirla

Centro Storico

- Milano (MI) VIA TORINO
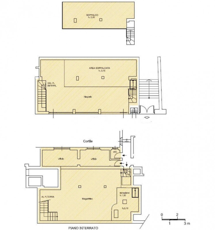
Immobilimpresa 10658878Riferimento Agenzia NLCR076 – Proponiamo in locazione negozio di mq 195 ca. completamente ristrutturato sito in stabile di prestigio posizionato nel quartiere storico di Milano. Canone annuo Euro. 60.000,00 ( pari a ca. 5.000,00 ... Vedi di più
Prezzo: € 5.000   Fai una controproposta

Hai un immobile simile da vendere? Vendine uno uguale

La responsabilità del contenuto dell'annuncio fa capo all'inserzionista, non forniamo garanzie per le informazioni pubblicate da terzi

Contatta per l'annuncio

Ricevi più proposte: le caratteristiche dell'immobile che stai cercando ed i tuoi recapiti, verranno inviati alle agenzie immobiliari della zona di tuo interesse

Registrandoti a questo servizio dichiari di aver letto e di accettare l'Informativa alla Privacy

* I campi con l'asterisco sono obbligatori

CONSULENZA Prestiti
Personali e MUTUO