immobilimpresa

Locale commerciale/Negozio in Vendita Savona

250.000 calcola mutuo

Mq. 160

5 locali

Clicca sull'immagine per ingrandirla

San Rita

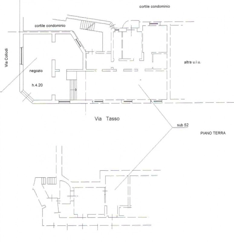
- Savona (SV) via collodi
Immobilimpresa 10438429Riferimento Agenzia V30 – Splendido locale commerciale di 160 mq situato al piano terreno in una tranquilla zona residenziale a San Rita, Savona. L'immobile si trova in posizione d'angolo ed è parzialmente ristrutturato... Vedi di più
Prezzo: € 250.000   Fai una controproposta

Hai un immobile simile da vendere? Vendine uno uguale

La responsabilità del contenuto dell'annuncio fa capo all'inserzionista, non forniamo garanzie per le informazioni pubblicate da terzi

Contatta per l'annuncio

Ricevi più proposte: le caratteristiche dell'immobile che stai cercando ed i tuoi recapiti, verranno inviati alle agenzie immobiliari della zona di tuo interesse

Registrandoti a questo servizio dichiari di aver letto e di accettare l'Informativa alla Privacy

* I campi con l'asterisco sono obbligatori

CONSULENZA Prestiti
Personali e MUTUO