immobilimpresa

Ufficio in Vendita Bomporto

95.000 calcola mutuo

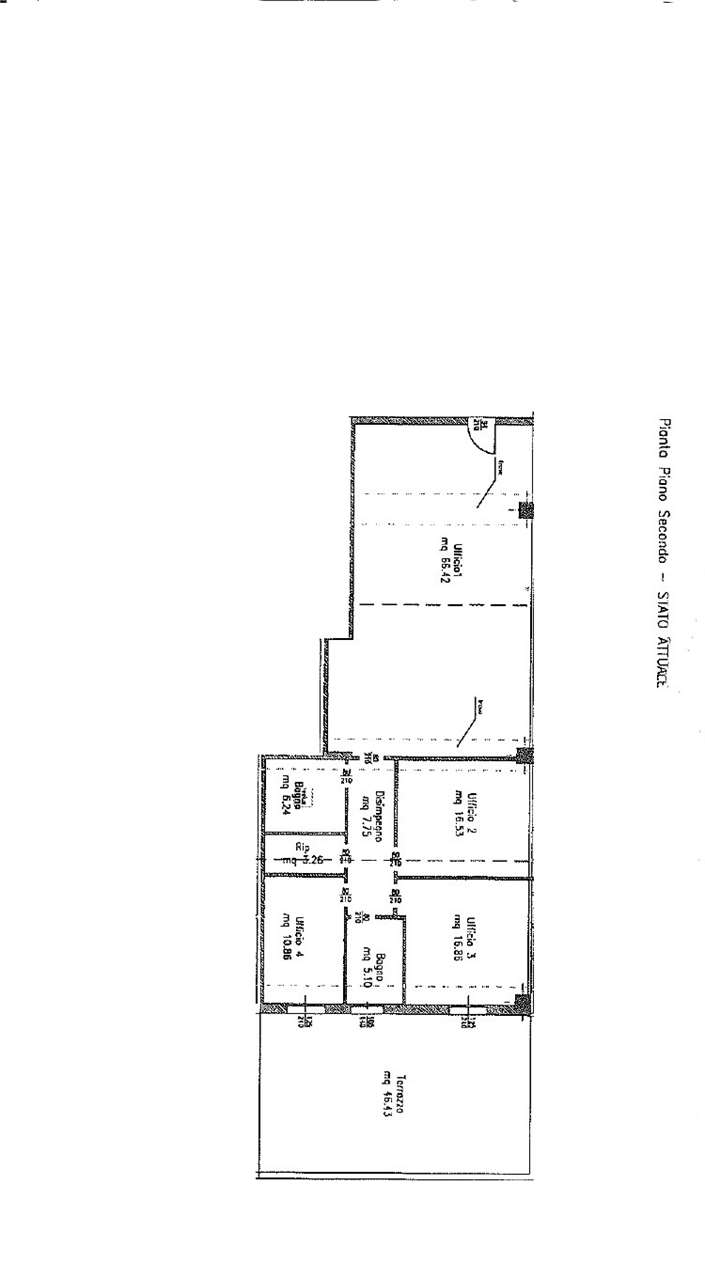
Mq. 164

4 locali

Clicca sull'immagine per ingrandirla

Bomporto

(MO) via carlo testa
Immobilimpresa 10405057Riferimento Agenzia SP9667 – SP 9667 - BOMPORTO - L'Agenzia Immobiliare Velvet vi propone in vendita ampio ufficio con terrazzo di circa 50 mq, in zona tranquilla e comoda ai servizi, così composto: -ingresso in ampi... Vedi di più
Prezzo: € 95.000   Fai una controproposta

Hai un immobile simile da vendere? Vendine uno uguale

La responsabilità del contenuto dell'annuncio fa capo all'inserzionista, non forniamo garanzie per le informazioni pubblicate da terzi

Contatta per l'annuncio

Ricevi più proposte: le caratteristiche dell'immobile che stai cercando ed i tuoi recapiti, verranno inviati alle agenzie immobiliari della zona di tuo interesse

Registrandoti a questo servizio dichiari di aver letto e di accettare l'Informativa alla Privacy

* I campi con l'asterisco sono obbligatori

CONSULENZA Prestiti
Personali e MUTUO