immobilimpresa

Locale commerciale/Negozio in Affitto Castelfranco Veneto

2.000

Mq. 220

Clicca sull'immagine per ingrandirla

Castelfranco Veneto - Centro

- Castelfranco Veneto (TV) piazza Giorgione
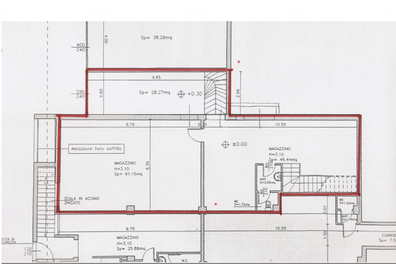
Immobilimpresa 10376635Riferimento Agenzia – Castelfranco V.to: in prestigiosa galleria, adiacente i portici di piazza Giorgione, proponiamo in locazione un locale commerciale di 160 mq composto da un locale open space di 108 mq posto al piano t... Vedi di più
Prezzo: € 2.000   Fai una controproposta

Hai un immobile simile da vendere? Vendine uno uguale

La responsabilità del contenuto dell'annuncio fa capo all'inserzionista, non forniamo garanzie per le informazioni pubblicate da terzi

Contatta per l'annuncio

Ricevi più proposte: le caratteristiche dell'immobile che stai cercando ed i tuoi recapiti, verranno inviati alle agenzie immobiliari della zona di tuo interesse

Registrandoti a questo servizio dichiari di aver letto e di accettare l'Informativa alla Privacy

* I campi con l'asterisco sono obbligatori

CONSULENZA Prestiti
Personali e MUTUO