immobilimpresa

Capannone in Vendita Longiano

€ trattativa riservata

Mq. 3430

4 locali

Clicca sull'immagine per ingrandirla

Longiano

- Longiano (FC) VIA LUCIANO LAMA
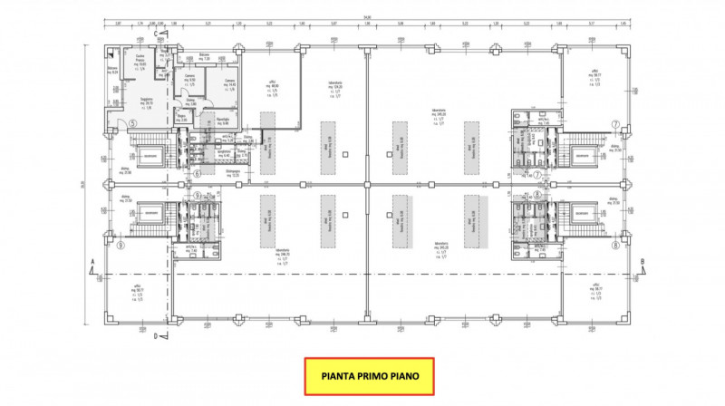
Immobilimpresa 10250863Riferimento Agenzia R588 – A Longiano lungo la via Emilia, vendiamo capannone grezzo indipendente di totali 3.430 mq su lotto di 4.500 mq. Il complesso è frazionabile e accatastabile in base alle esigenze con anche: - a... Vedi di più
Prezzo: Trattativa riservata   Fai una controproposta

Hai un immobile simile da vendere? Vendine uno uguale

La responsabilità del contenuto dell'annuncio fa capo all'inserzionista, non forniamo garanzie per le informazioni pubblicate da terzi

Contatta per l'annuncio

Ricevi più proposte: le caratteristiche dell'immobile che stai cercando ed i tuoi recapiti, verranno inviati alle agenzie immobiliari della zona di tuo interesse

Registrandoti a questo servizio dichiari di aver letto e di accettare l'Informativa alla Privacy

* I campi con l'asterisco sono obbligatori

CONSULENZA Prestiti
Personali e MUTUO