immobilimpresa

Locale commerciale/Negozio in Affitto Milano

30.000

Mq. 2000

4 locali

Clicca sull'immagine per ingrandirla

Affori

- Milano (MI) VIA CANDIANI GIUSEPPE
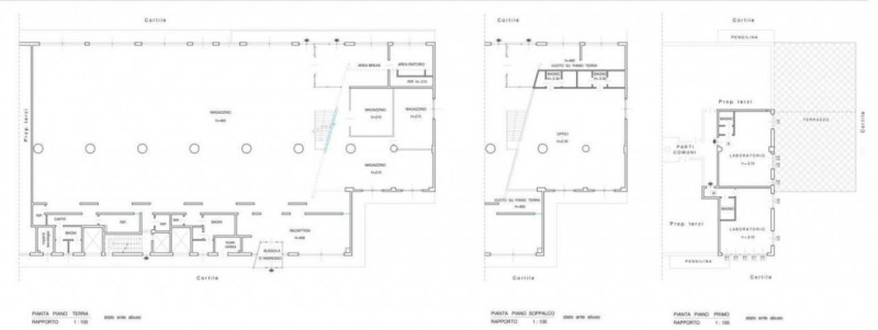
Immobilimpresa 10234998Riferimento Agenzia NL413 – Proponiamo in locazione prestigioso negozio di mq. 2.000 ca., suddivisio su 3 livelli. Al primo piano troviamo un grosso open-space ad uso negozio con 3 ampi uffici singoli di rappresentanza, molto lu... Vedi di più
Prezzo: € 30.000   Fai una controproposta

Hai un immobile simile da vendere? Vendine uno uguale

La responsabilità del contenuto dell'annuncio fa capo all'inserzionista, non forniamo garanzie per le informazioni pubblicate da terzi

Contatta per l'annuncio

Ricevi più proposte: le caratteristiche dell'immobile che stai cercando ed i tuoi recapiti, verranno inviati alle agenzie immobiliari della zona di tuo interesse

Registrandoti a questo servizio dichiari di aver letto e di accettare l'Informativa alla Privacy

* I campi con l'asterisco sono obbligatori

CONSULENZA Prestiti
Personali e MUTUO